Ein Wohlfühlort im Grünen, altersgerecht gebaut, zentral gelegen und dennoch ruhig und naturverbunden.
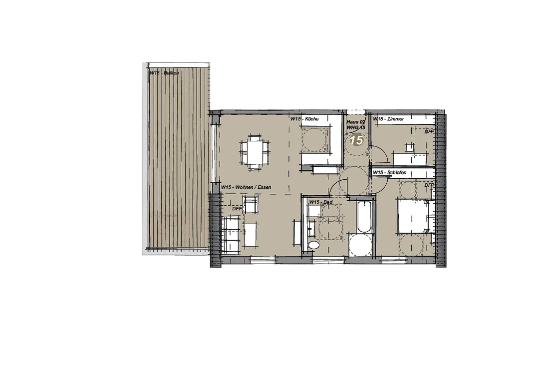
Es erwarten Sie 3-Zimmer-Wohnungen mit 100 m² im 2. Obergeschoss. Ein absolutes Highlight ist die nach Süd-West ausgerichtete 30 m² große Dachterrasse. Diese lädt zum Verweilen ein und garantiert Ihnen einen herrlichen Ausblick auf den Sonnenuntergang. Die attraktiven und modernen Penthousewohnungen bietet Ihnen zudem einen großen, lichtdurchfluteten Wohn- und Essbereich über diesen Sie direkten Zugang auf Ihre Dachterrasse haben.
Der große, offene Küchenbereich lädt zum Kochen mit der ganzen Familie ein. Machen Sie es sich gemütlich und entspannen Sie bei einem Bad mit Blick auf den Sternenhimmel.
Individuelle Wohnungsgrundrisse unterstreichen das urbane Wohnkonzept und sorgen dafür, dass die einzelnen Wohneinheiten für jedes Alter und jeden Lebensentwurf ein passendes Zuhause bieten.
3-Zimmer-Wohnung
100 m²
Wohnfläche
553.000 €
ohne zusätzliche Provision
Langerringen
Ihr neues Eigenheim befindet sich am Ortsrand der Gemeinde Langerringen am idyllischen Ufer der Singold.
Direkt vor Ihrer Haustüre befindet sich das Naturschutzgebiet „Burghofweiher“ und bietet Ihnen somit zahlreiche Sport- und Freizeitmöglichkeiten. Gleichzeitig sind es nur wenige Gehminuten in die Ortsmitte, in der sich z. B. Bäcker, Metzger, Tagespflege, Ärzte, Apotheken, Grundschule und Kindertagesstätte befinden. Auch die umliegenden Orte Schwabmünchen, Landsberg und Buchloe sind schnell zu erreichen. Eine perfekte Verkehrsanbindung bietet dabei die B17 sowie die A96.

Zustand: Neubau
Verfügbar: ab 2027
Objektart: Mehrfamilienhaus
Baujahr: 2027
Etagen: 3
Ausstattung: Aufzug

Herbert Lutzenberger
Geschäftsführung


